ALÜMİNYUM CEPHE SİSTEMLERİ
Alüminyum camlı giydirme cephe sistemleri bina mantolamaları olarak kullanılır ve iç mekanda maksimum gün ışığı alımını sağlayarak bina sakinleri için güvenli ve konforlu bir ortam yaratır.
Üstelik alüminyum giydirme cepheler, yüksek estetik değeri ve mimari uygulamalardaki sınırsız olanakları nedeniyle popüler bir seçimdir.
giydirme cepheler üç ana kategoriye ayrılır: çubuk tipi (çıtalı, kapaklı, stick), yapısal (kasetli, silikonlu, structural) ve birleştirilmiş (panel, unitized) cepheler.
KAPAKLI CEPHE SİSTEMLERİ

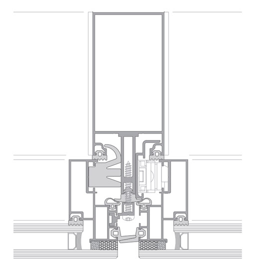
LINEA ROSSA - 9200
Karakteristik Özellikler
- 50 mm Profil Genişliğinde Düşey ve Yatay Profiller
- Bina Yüksekliğine ve Açıklıklara Göre Farklı Profil Seçenekleri
- Stick ve Kapaklı Uygulama İmkanı
- İstenilen Alanda Açılır Cam Uygulama İmkanı
- Düşey ve Yatay Hemyüz Birleşim
- Stick cephe klipsli uygulama

LINEA ROSSA - 9300
Karakteristik Özellikler
- 50 mm Profil Genişliğinde Düşey ve Yatay Profiller
- Bina Yüksekliğine ve Açıklıklara Göre Farklı Profil Seçenekleri
- Stick ve Kapaklı Uygulama İmkanı
- İstenilen Alanda Açılır Cam Uygulama İmkanı
- Düşey ve Yatay Hemyüz Birleşim
- Stick cephe klipsli uygulama
- 945 mm cam uygulama imkanı
SİLİKON CEPHE SİSTEMLERİ
ALFORE - BEYCEPHE
Karakteristik Özellikler
- Beycephe Serisi Giydirme Cephe Sistemleri
- Silikon ve Kapaklı Uygulama İmkanı
PANEL CEPHE SİSTEMLERİ

LINEA ROSSA - 9500
Karakteristik Özellikler
- Geniş Profil Seçenekleri İle Optimum Çözümler
- Standart Alüminyum Çift Açılım Sistemi İle Birlikte, PVC Çift Açılım Sistemini Uygulayabilme İmkanı
- Kasa Orta Contası İle Radüslü Isı Yalıtım Bariyerinin Birleşmesi Sonucunda Mükemmel Sızdırmazlık ve Ses Yalıtımı
- Özel Dizayn Edilmiş Ayarlanabilir Kilit Karşılıkları
- Farklı Kombinasyonlar İle Daha İyi Isı Yalıtım Değerleri İmkanı
- Üçlü Cam ve Jaluzili Cam Uygulayabilme İmkanı
- Gümüş, Bronz Renkli Eloksal Yüzeyler ile Metalin Modern ve Estetik Görünümü
- Özel Dizayn Edilmiş Farklı Konseptlerde Toz Boya ve Ahşap Görünüm Seçenekleri
Teknik Özellikler
- Kanat Genişliği: 72 mm
- Kasa Genişliği: 65 mm
- Kasa Kanat Yüksekliği (min.): 90 mm
- Cam Kalınlığı: 16 – 42 mm arası
- Max. Kanat Taşıma Kapasitesi: 120 Kg ∼ 200 kg
- Yalıtım Köprüsü: 24 mm
- Isı Yalıtımı EN ISO 10077-2: Uf=2,3 W/m2K
