KORKULUK & KÜPEŞTE SİSTEMLERİ

LINEA ROSSA - 1500
Karakteristik Özellikler
- 90+10 lamine cam uygulama imkanı
- Yatay ve düşeyde bulunan somunlar yardımı ile hizalama imkanı
- Camı taşıyan ana taşıyıcı
- Ön ve üst kapak için sınırsız renk alternatifi
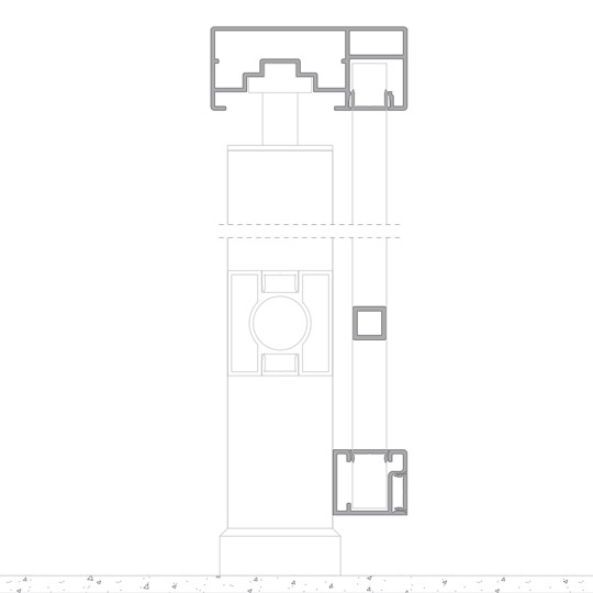
ALFORE - KÜPEŞTE
Karakteristik Özellikler
- Alfore küpeşte ve korkuluk sistemleri

SARAY - KARE KORKULUK
Karakteristik Özellikler
Saray cam küpeşte sistemi sağlamlığı ve estetik dizaynı ile yapılara değer katar. Sistem 17.52 – 21.52 mm kalınlıkta temperli ve lamine camlar için uygundur. Geri dönüşüm özelliği ile doğayla dosttur.
Uygulama Alanları
İş merkezleri, havaalanı, hastane, alışveriş merkezleri, konut vb. birçok yapının galeri boşlukları, balkon, havuz kenarları, teras vb. muhtelif bölümlerinde emniyet ve sınırsız görüş sağlamak için tasarlanmıştır. İç ve dış mekanlarda rahatlıkla kullanılabilir.

SARAY - YUVARLAK KORKULUK
Karakteristik Özellikler
- Dış ortama ve UV ışıklarına dayanımı
- Sağlamlık
- Güvenlik
- Paslanmama
- Bakım gerektirmeme
- Sınırsız camlı camsız ve değişik profillerle tasarım yapılabilme imkanı

SARAY - CAM TUTUCULU KORKULUK
Karakteristik Özellikler
Saray cam küpeşte sistemi sağlamlığı ve estetik dizaynı ile yapılara değer katar. Sistem 17.52 – 21.52 mm kalınlıkta temperli ve lamine camlar için uygundur. Geri dönüşüm özelliği ile doğayla dosttur.
Uygulama Alanları
İş merkezleri, havaalanı, hastane, alışveriş merkezleri, konut vb. birçok yapının galeri boşlukları, balkon, havuz kenarları, teras vb. muhtelif bölümlerinde emniyet ve sınırsız görüş sağlamak için tasarlanmıştır. İç ve dış mekanlarda rahatlıkla kullanılabilir.
Teknik Özellikler
- Alaşım 6060/6063/AIMgSi 0,5
- Özgül ağırlık 2,71 gr/cm³
- Genleşme katsayısı 23×10 (-6)
- Elastisite modülü 70.000 N/mm²
- Elektrostatik boya kalınlığı 60 mikron (en az)
- Eloksal kalınlığı 12/14 mikron ve isteğe göre üzeri
